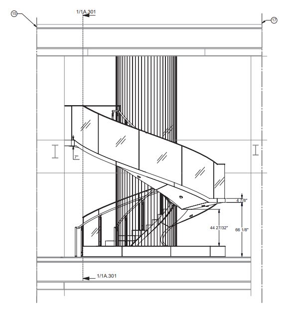
Two identical curved stairs for Blue Owl Capital in Manhattan. The steel carcass was fabricated out of discrete modules assembled to wrap around a spring loaded tension cable system and clad in FRP. A Terrazzo walking surface is inlaid with bronze traction strips and the handrail is wrapped in leather.
Architect: Gensler
Contractor: TriStar Construction