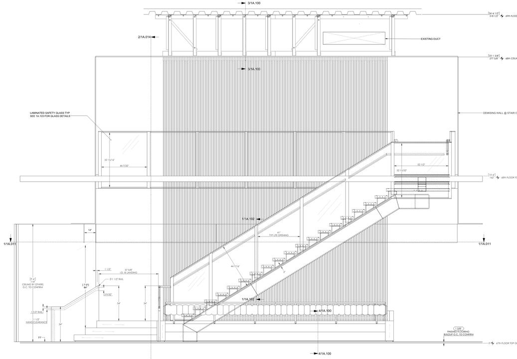
Feature stair built for a Manhattan law office with fumed white oak treads & platform, banquette seating, machined bronze fittings and wire rope screen. Woodwork by Island Architectural Woodwork.
Architect: Gensler Contractor: JRM Construction