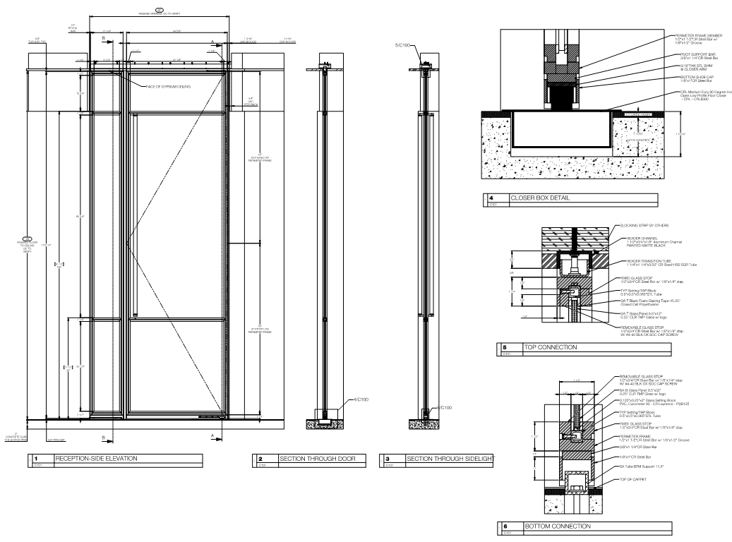
Custom steel and glass partitions for a Manhattan office using a custom made steel pultrusion.
Architect: BBGM Contractor: Icon Construction