Pinebridge 01
Pinebridge 02
Pinebridge 03
Pinebridge 03
Pinebridge 03

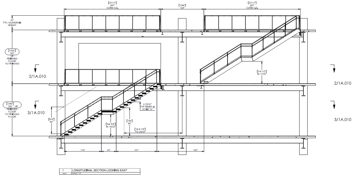
Feature Stairs at Pinebridge Investments

Two sets of tapering stairs with wire rope at Pinebridge Investments.

Architect: Spector Group
Contractor: Structuretone